
METRIC
MIL-DTL-70329/1A
7 JANUARY 2009
SUPERSEDING
DOD-N-70329/1
16 August 1982
MILITARY SPECIFICATION SHEET
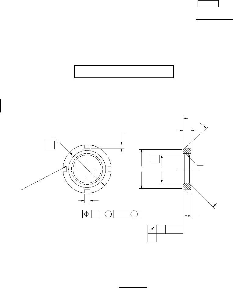
NUT, PLAIN, ROUND, BALL AND ROLLER BEARINGS
NARROW SERIES, METRIC
Inactive for new design after 1 October 1999
This specification is approved for use by all Departments and Agencies of the
Department of Defense.
The complete requirements for aquiring the product described herein shall consist of this
specification sheet and MIL-DTL-70329.
30° ±2°
D
F
C
Y
Z
T
PITCH Ø
E
THREAD
RADIUS OR
CHAMFER AT
BOTTOM OF
G
SLOTS
4 SLOTS EQUALLY SPACED
45° - 60°
X
Y M
TOL S
M
BOTH SIDES
Z
TOL V
X
NOTES:
1. All dimensions are in millimeters.
FIGURE 1. Configuration.
AMSC N/A
1 of 4
FSC 5310
For Parts Inquires call Parts Hangar, Inc (727) 493-0744
© Copyright 2015 Integrated Publishing, Inc.
A Service Disabled Veteran Owned Small Business